PLUS Пулковский, 4-комн., 67 м²

Санкт-Петербург · Московский р-н · PLUS Пулковский
Обновлено: 14 апр. 2026 г.
15 916 450 ₽
236 500 ₽ за м²
На 32% ниже рынка района
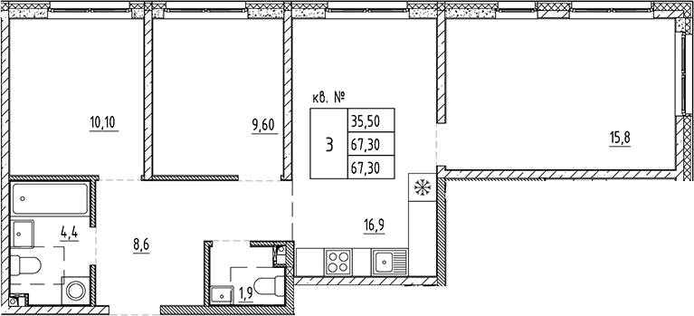
Планировка

Узнать подробности

Ответим за 5 минут

Выберите удобный способ связи

Площадь
67.3 м²жилая 35.5 м²
Комнат
4
Этаж
1 из 5
Сдача
2027
Конструктив
Кирпично-монолитный
Отделка
Чистовая
Очередь
3-я

Риски

Уровень риска40/100 — Средний
  • Умеренный риск — стандартная проверка документов

Интересует этот объект?

Получите бесплатный разбор с оценкой и рекомендацией за 24 часа

Получить разбор

AI-скоринг объекта

Инвест-скоринг
██/100
Доходность аренды
██%
Рост цены/год
██%
Ликвидность
██/100
Окупаемость
██ лет
Дисконт от рынка
██%

Разблокировать аналитику

Зарегистрируйтесь, чтобы увидеть полный скоринг, ROI и AI-разбор. 3 запроса в месяц бесплатно.

Помощь со сделкой

  • Проверка юридической чистоты объекта и застройщика
  • Переговоры по цене и условиям от вашего имени
  • Полное сопровождение сделки до регистрации
Узнать подробнее

Управление после покупки

  • Сдача в аренду: подбор арендаторов, договор, заселение
  • Контроль состояния объекта и решение проблем
  • Ежемесячные отчёты о доходах и расходах
Узнать подробнее

Жилой комплекс

PLUS Пулковский

История цен

Кому подойдёт этот объект

РантьеОтлично

Сдача в аренду с доходностью 8–12% годовых. Пассивный доход без забот.

Инвестор на рост

Покупка на этапе строительства, перепродажа при вводе. Потенциал 15–30%.

СемьяОтлично

4 комн., 67 м² — удобная планировка для семьи по инвестиционной цене.

Что делать после покупки

Сдавать в аренду

Ориентировочный доход ~95 тыс. ₽/мес. Окупаемость ~14 лет.

Перепродать через 2 года

При росте 10%/год → 19.1 млн ₽. Прибыль ~3.2 млн ₽.

Отдать в управление

Мы найдём арендатора, оформим договор, будем контролировать платежи и присылать отчёт каждый месяц.

Стоимость владения

Коммунальные (оценка)3 365 ₽/мес
Итого ~3 365 ₽/мес

Оценка на основе данных объекта и средних значений по региону. Реальные расходы могут отличаться.

Связаться с нами

Получите инвестиционный разбор объекта — бесплатно.

Telegram @Brok1Bot

Аналитика объекта

Доходность, рейтинг, прогноз роста и риски — доступны после авторизации.

Разблокировать

Сравнение с альтернативами

Вложение 16 387 550 ₽ — прибыль через 3 и 5 лет

Этот объект
3г: +6 571 670 ₽5г: +11 278 331 ₽

13.0%

в год

Депозит 21%ЛУЧШЕ
3г: +10 722 968 ₽5г: +21 534 082 ₽

18.3%

в год

Акции (индекс)
3г: +6 635 778 ₽5г: +12 492 912 ₽

12.0%

в год

* Депозит: после НДФЛ 13%. Акции: средняя доходность индекса МосБиржи. Недвижимость: аренда + рост стоимости. Оценочные данные, не гарантия.

Что вы получаете

  • Проверка юридической чистоты объекта
  • Персональный разбор с финмоделью
  • Полное сопровождение сделки
  • AI-анализ по 15 параметрам
Рассчитать доходность →В портфель