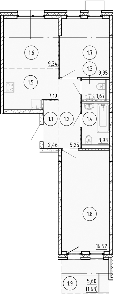
Манзара, 2-комн., 56 м²
Узнать подробности
Ответим за 5 минут
Выберите удобный способ связи
Риски
- Низкий риск — объект прошёл базовую проверку
Интересует этот объект?
Получите бесплатный разбор с оценкой и рекомендацией за 24 часа
AI-скоринг объекта
Разблокировать аналитику
Зарегистрируйтесь, чтобы увидеть полный скоринг, ROI и AI-разбор. 3 запроса в месяц бесплатно.
Помощь со сделкой
- Проверка юридической чистоты объекта и застройщика
- Переговоры по цене и условиям от вашего имени
- Полное сопровождение сделки до регистрации
Управление после покупки
- Сдача в аренду: подбор арендаторов, договор, заселение
- Контроль состояния объекта и решение проблем
- Ежемесячные отчёты о доходах и расходах
Жилой комплекс
Манзара
История цен
Кому подойдёт этот объект
Сдача в аренду с доходностью 8–12% годовых. Пассивный доход без забот.
Покупка на этапе строительства, перепродажа при вводе. Потенциал 15–30%.
2 комн., 56 м² — удобная планировка для семьи по инвестиционной цене.
Что делать после покупки
Ориентировочный доход ~93 тыс. ₽/мес. Окупаемость ~14 лет.
При росте 10%/год → 18.5 млн ₽. Прибыль ~3.1 млн ₽.
Мы найдём арендатора, оформим договор, будем контролировать платежи и присылать отчёт каждый месяц.
Стоимость владения
Оценка на основе данных объекта и средних значений по региону. Реальные расходы могут отличаться.
Связаться с нами
Получите инвестиционный разбор объекта — бесплатно.
Аналитика объекта
Доходность, рейтинг, прогноз роста и риски — доступны после авторизации.
РазблокироватьСравнение с альтернативами
Вложение 15 445 810 ₽ — прибыль через 3 и 5 лет
19.0%
в год
18.3%
в год
12.0%
в год
* Депозит: после НДФЛ 13%. Акции: средняя доходность индекса МосБиржи. Недвижимость: аренда + рост стоимости. Оценочные данные, не гарантия.
Что вы получаете
- Проверка юридической чистоты объекта
- Персональный разбор с финмоделью
- Полное сопровождение сделки
- AI-анализ по 15 параметрам