Аэросити, Студия, 20 м²

Saint Petersburg · Пушкинский р-н · Аэросити
Updated: Apr 14, 2026
RUB 5,236,560
RUB 268,266 /m²
16% above district market
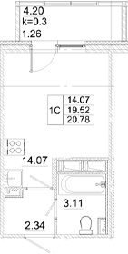
Floor plan

Get Details

We reply in 5 minutes

Choose your preferred contact method

Area
19.52 living 14.07
Rooms
Studio
Floor
12 / 12
Completion
2027
Structure
Кирпично-монолитный
Finish
Чистовая
Phase
#7
Adjusted
20.78

Risks

Risk level40/100 — Medium
  • Moderate risk — standard document verification advised

Interested in this property?

Get a free analysis with rating and recommendation within 24 hours

Get analysis

AI property scoring

Invest score
██/100
Rental yield
██%
Price growth/yr
██%
Liquidity
██/100
Payback
██ yrs
Market discount
██%

Unlock analytics

Register to see full scoring, ROI and AI analysis. 3 requests per month free.

Deal support

  • Legal due diligence on property and developer
  • Price and terms negotiation on your behalf
  • Full deal support through closing
Learn more

Management after purchase

  • Rental management: tenant search, contract, move-in
  • Property condition monitoring and issue resolution
  • Monthly income and expense reports
Learn more

Жилой комплекс

Аэросити

Price History

Who is this property for

Rental investorGreat fit

Rent out with 10–14% annual yield. Passive income, no hassle.

Growth investorGreat fit

Buy during construction, resell at handover. 15–30% potential.

Young professionalGreat fit

Compact apartment for living or starting an investment portfolio.

What to do after purchase

Rent out

Estimated income ~31 тыс. ₽/mo. Payback ~14 years.

Resell in 2 years

At 10%/yr growth → 6.3 млн ₽. Profit ~1.0 млн ₽.

Hand over to management

We'll find a tenant, handle the contract, monitor payments, and send you a monthly report.

Cost of Ownership

Utilities (est.)RUB 976/mo
Total ~RUB 976/mo

Estimate based on property data and regional averages. Actual costs may vary.

Contact us

Get a free investment analysis of this property.

Telegram @Brok1Bot

Property Analytics

Yield, rating, price forecast & risks — available after sign-in.

Unlock

Compare with alternatives

Investing RUB 5,402,800 — profit in 3 and 5 years

This property
3y: +RUB 2,166,6095y: +RUB 3,718,345

13.0%

/year

Deposit 21%BEST
3y: +RUB 3,535,2485y: +RUB 7,099,556

18.3%

/year

Stocks (index)
3y: +RUB 2,187,7455y: +RUB 4,118,780

12.0%

/year

* Deposit: after 13% income tax. Stocks: MOEX index average. Real estate: rent + capital growth. Estimates, not guarantees.

What you get

  • Legal due diligence
  • Personal analysis with financial model
  • Full deal support
  • AI analysis across 15 parameters
Calculate ROI →Add to portfolio