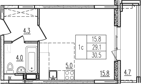
Пироговская ривьера, Студия, 29 м²
Risks
- Low risk — property passed basic screening
Interested in this property?
Get a free analysis with rating and recommendation within 24 hours
AI property scoring
Unlock analytics
Register to see full scoring, ROI and AI analysis. 3 requests per month free.
Deal support
- Legal due diligence on property and developer
- Price and terms negotiation on your behalf
- Full deal support through closing
Management after purchase
- Rental management: tenant search, contract, move-in
- Property condition monitoring and issue resolution
- Monthly income and expense reports
Жилой комплекс
Пироговская ривьера
Price History
Who is this property for
Rent out with 10–14% annual yield. Passive income, no hassle.
Buy during construction, resell at handover. 15–30% potential.
Compact apartment for living or starting an investment portfolio.
What to do after purchase
Estimated income ~37 тыс. ₽/mo. Payback ~14 years.
At 10%/yr growth → 7.5 млн ₽. Profit ~1.2 млн ₽.
We'll find a tenant, handle the contract, monitor payments, and send you a monthly report.
Cost of Ownership
Estimate based on property data and regional averages. Actual costs may vary.
Contact us
Get a free investment analysis of this property.
Compare with alternatives
Investing RUB 6,240,260 — profit in 3 and 5 years
27.0%
/year
18.3%
/year
12.0%
/year
* Deposit: after 13% income tax. Stocks: MOEX index average. Real estate: rent + capital growth. Estimates, not guarantees.
What you get
- Legal due diligence
- Personal analysis with financial model
- Full deal support
- AI analysis across 15 parameters