Движение Тушино. Спартак, 2-комн., 53 м²

Москва · Покровское-Стрешнево · Движение Тушино. Спартак
Обновлено: 6 апр. 2026 г.
19 102 248 ₽
361 785 ₽ за м²
На 34% ниже рынка района
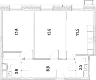
Планировка
Площадь
52.8 м²жилая 26.4 м²
Комнат
2
Этаж
22 из 22
Сдача
2022
Конструктив
Кирпично-монолитный
Отделка
Без стен
Очередь
1-я

Риски

Уровень риска19/100 — Низкий
  • Низкий риск — объект прошёл базовую проверку

Интересует этот объект?

Получите бесплатный разбор с оценкой и рекомендацией за 24 часа

Получить разбор

AI-скоринг объекта

Инвест-скоринг
██/100
Доходность аренды
██%
Рост цены/год
██%
Ликвидность
██/100
Окупаемость
██ лет
Дисконт от рынка
██%

Разблокировать аналитику

Зарегистрируйтесь, чтобы увидеть полный скоринг, ROI и AI-разбор. 3 запроса в месяц бесплатно.

Помощь со сделкой

  • Проверка юридической чистоты объекта и застройщика
  • Переговоры по цене и условиям от вашего имени
  • Полное сопровождение сделки до регистрации
Узнать подробнее

Управление после покупки

  • Сдача в аренду: подбор арендаторов, договор, заселение
  • Контроль состояния объекта и решение проблем
  • Ежемесячные отчёты о доходах и расходах
Узнать подробнее

Жилой комплекс

Движение Тушино. Спартак

История цен

Кому подойдёт этот объект

РантьеОтлично

Сдача в аренду с доходностью 8–12% годовых. Пассивный доход без забот.

Инвестор на рост

Покупка на этапе строительства, перепродажа при вводе. Потенциал 15–30%.

СемьяОтлично

2 комн., 53 м² — удобная планировка для семьи по инвестиционной цене.

Что делать после покупки

Сдавать в аренду

Ориентировочный доход ~115 тыс. ₽/мес. Окупаемость ~14 лет.

Перепродать через 2 года

При росте 10%/год → 22.9 млн ₽. Прибыль ~3.8 млн ₽.

Отдать в управление

Мы найдём арендатора, оформим договор, будем контролировать платежи и присылать отчёт каждый месяц.

Стоимость владения

Коммунальные (оценка)2 640 ₽/мес
Итого ~2 640 ₽/мес

Оценка на основе данных объекта и средних значений по региону. Реальные расходы могут отличаться.

Связаться с нами

Получите инвестиционный разбор объекта — бесплатно.

Telegram @Brok1Bot

Аналитика объекта

Доходность, рейтинг, прогноз роста и риски — доступны после авторизации.

Разблокировать

Сравнение с альтернативами

Вложение 19 102 248 ₽ — прибыль через 3 и 5 лет

Этот объектЛУЧШЕ
3г: +17 917 910 ₽5г: +35 116 049 ₽

27.0%

в год

Депозит 21%
3г: +12 499 294 ₽5г: +25 101 334 ₽

18.3%

в год

Акции (индекс)
3г: +7 735 035 ₽5г: +14 562 440 ₽

12.0%

в год

* Депозит: после НДФЛ 13%. Акции: средняя доходность индекса МосБиржи. Недвижимость: аренда + рост стоимости. Оценочные данные, не гарантия.

Что вы получаете

  • Проверка юридической чистоты объекта
  • Персональный разбор с финмоделью
  • Полное сопровождение сделки
  • AI-анализ по 15 параметрам
Рассчитать доходность →В портфель