Коттеджный поселок Конфидо, 5-комн., 185 м²

Kazan · Зеленодольский район · Коттеджный поселок Конфидо
Updated: Mar 28, 2026
RUB 22,580,000
RUB 121,856 /m²
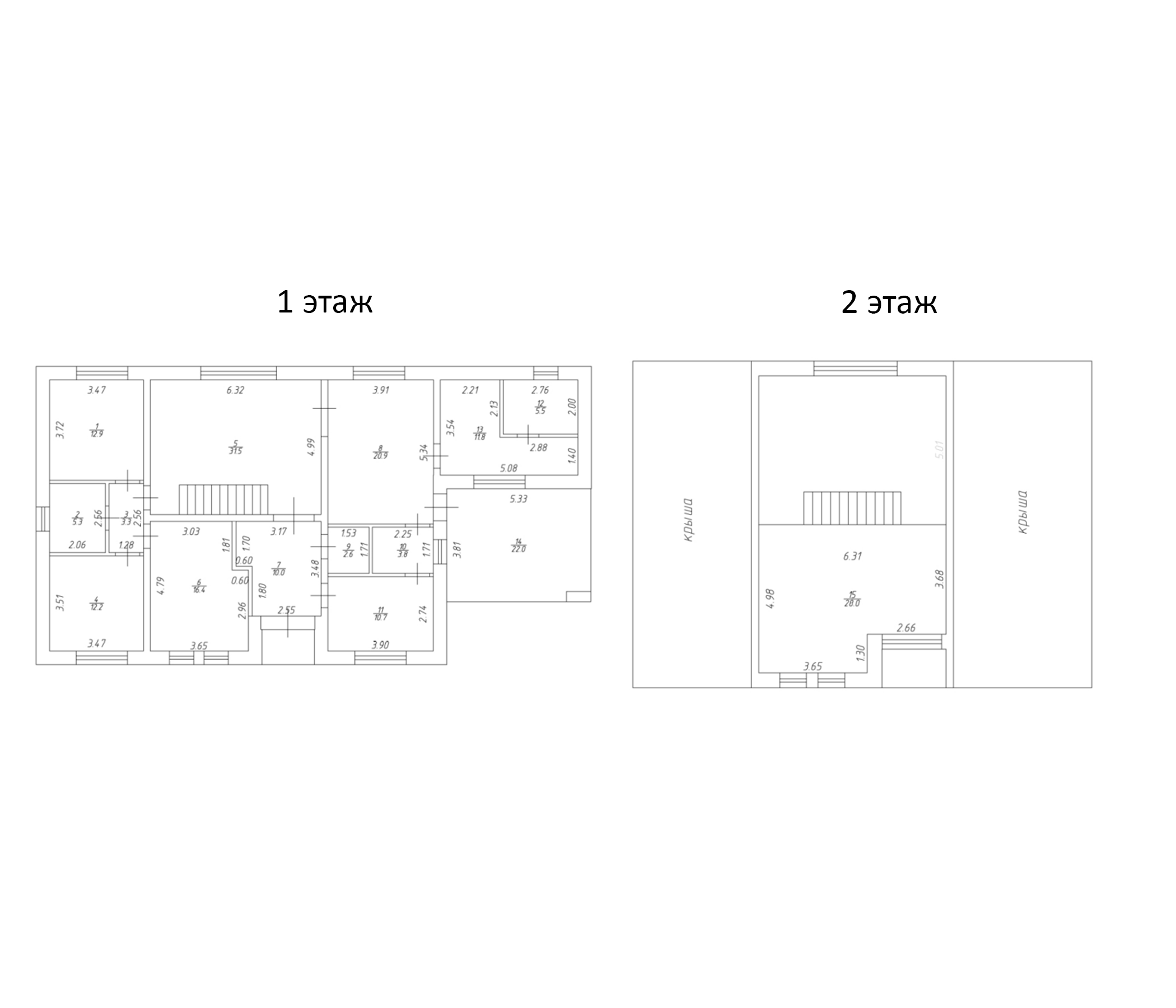
Floor plan
Area
185.3 living 101
Rooms
5
Floor
1 / 2
Completion
2024
Structure
Кирпичный
Finish
Без отделки
Phase
#1
Adjusted
207.3

Risks

Risk level18/100 — Low
  • Low risk — property passed basic screening

Interested in this property?

Get a free analysis with rating and recommendation within 24 hours

Get analysis

AI property scoring

Invest score
██/100
Rental yield
██%
Price growth/yr
██%
Liquidity
██/100
Payback
██ yrs
Market discount
██%

Unlock analytics

Register to see full scoring, ROI and AI analysis. 3 requests per month free.

Deal support

  • Legal due diligence on property and developer
  • Price and terms negotiation on your behalf
  • Full deal support through closing
Learn more

Management after purchase

  • Rental management: tenant search, contract, move-in
  • Property condition monitoring and issue resolution
  • Monthly income and expense reports
Learn more

Жилой комплекс

Коттеджный поселок Конфидо

Price History

Who is this property for

Rental investorGreat fit

Rent out with 8–12% annual yield. Passive income, no hassle.

Growth investor

Buy during construction, resell at handover. 15–30% potential.

FamilyGreat fit

5 bed, 185 m² — comfortable layout for a family at investment price.

What to do after purchase

Rent out

Estimated income ~135 тыс. ₽/mo. Payback ~14 years.

Resell in 2 years

At 10%/yr growth → 27.1 млн ₽. Profit ~4.5 млн ₽.

Hand over to management

We'll find a tenant, handle the contract, monitor payments, and send you a monthly report.

Cost of Ownership

Utilities (est.)RUB 9,265/mo
Total ~RUB 9,265/mo

Estimate based on property data and regional averages. Actual costs may vary.

Contact us

Get a free investment analysis of this property.

Telegram @Brok1Bot

Property Analytics

Yield, rating, price forecast & risks — available after sign-in.

Unlock

Compare with alternatives

Investing RUB 22,580,000 — profit in 3 and 5 years

This property
3y: +RUB 9,054,9415y: +RUB 15,540,134

13.0%

/year

Deposit 21%BEST
3y: +RUB 14,774,9135y: +RUB 29,671,279

18.3%

/year

Stocks (index)
3y: +RUB 9,143,2745y: +RUB 17,213,675

12.0%

/year

* Deposit: after 13% income tax. Stocks: MOEX index average. Real estate: rent + capital growth. Estimates, not guarantees.

What you get

  • Legal due diligence
  • Personal analysis with financial model
  • Full deal support
  • AI analysis across 15 parameters
Calculate ROI →Add to portfolio